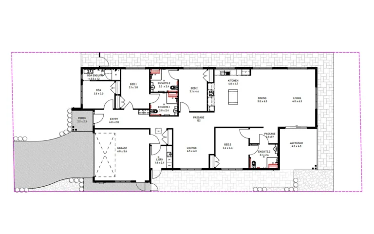
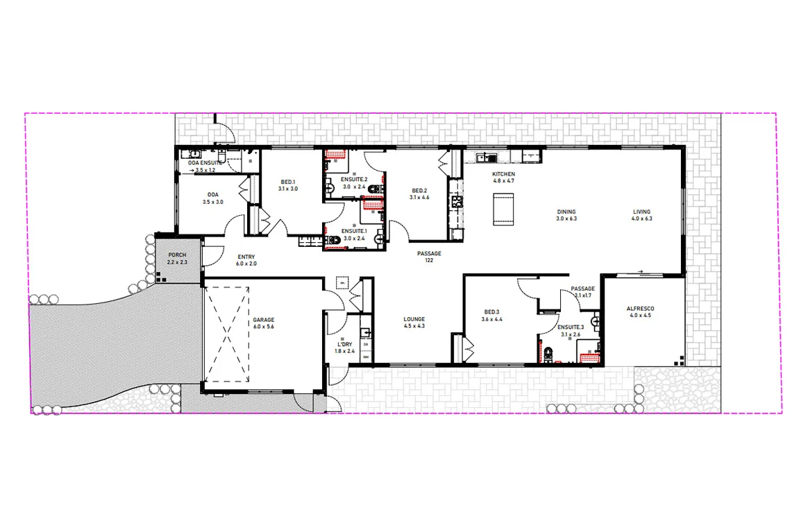
Welcome to our newly built High Physical Support (HPS) Specialist Disability Accommodation (SDA) located in the heart of Sunshine North. Thoughtfully designed for comfort, accessibility, and independence, this modern home also caters to Improved Livability (IL) and Fully Accessible (FA) SDA categories.
Sunshine HPS | IL | FA Category SDA - 3 Ensuites + OOA
With Care I Wish — Immediate Move-In Opportunity
Looking for a welcoming and well-supported SIL home in Melbourne’s eastern suburbs? Care I Wish is pleased to offer two vacancies at our spacious, single-storey residence in Sunshine, VIC 3020.
Sunshine, VIC 3020
- AMENITIES
- AMENITIES
Overview:
- Vacancies: 1
- Bedroom: 4
- Bathroom: 4
- Car Park: 3
- Tenants: 3
- Ensuites: 4
Support & Care Arrangements:
- 24/7 Supported Independent Living (SIL) staffing
- Tailored support aligned with individual NDIS goals
- Friendly, qualified staff providing consistent, person-centred care
- Disability van on site to support easy access to the community
Prime Location Highlights
- This home offers a peaceful residential setting with easy access to essential services and community amenities:
- Dempster Park – 450m (5-minute walk)
- Kororoit Creek Trail – 800m (10-minute walk)
- Sunshine Hospital – 3.5 km (7-minute drive)
- Sunshine Marketplace (shopping centre) – 2.8 km (6-minute drive)
- Sunshine Train Station – 3.2 km (7-minute drive)
- Local medical clinics and pharmacies – within 2 km
- Brimbank Community and Civic Centre – 2.5 km (5-minute drive)
Room Details:
- Private ensuite with full accessibility and modern fixtures
- Ceiling hoist provisions for safe and easy transfers
- Wide doorways and generous circulation space for wheelchairs and mobility devices
- Reinforced walls to support grab rails and assistive technology
- Height-adjustable power points and light switches for ease of use
- Automated or easy-access doors for enhanced independence
- Smart home technology for controlling lighting, climate, blinds, and emergency alerts
- Split system heating and cooling for personalised climate control
- Non-slip, durable flooring suitable for mobility equipment
- Built-in wardrobes with accessible storage design
- Large windows for natural light and fitted with accessible blinds
- Emergency call system connected to on-site SIL staff for 24/7 support
Contact Us Today
For more details or to arrange a tour, get in touch with the caring team at Care I Wish:
At Care I Wish, we’re dedicated to delivering inclusive, safe, and person-focused SIL services that meet the highest NDIS Practice Standards, supporting participants to achieve their goals in a comfortable, home-like setting.







